1822IoTだのなんだので色々遊べそうな、お家を作ってみる
こんにちは、お久しぶりです。
ゆうかりです。
さて今回は。
「IoTだのなんだので色々遊べそうな、お家を作ってみる」です。
あ!、流石にオイラは家屋設計は出来ないので。
「VISIO住宅販売」様の設計士さんにリクエストする形で、家屋を制作しております。
そーいや家屋設計の著作権とか、どうなっているんだろう・・・。
VISIO住宅販売様は、以下がサイトとなります。
https://visio-vj.co.jp/
経緯
元々ふるーい一軒家をお借りして、作業場として使っていたのですが。
白アリさんが沸いてしまいまして、まあ取り壊すことになりまして。
んで、実家の近くの適当な中古物件を漁っていたのですが、なんかいつのまにか一軒家を建てる方向に話がぶっとんでしまい。
「どーせ建てるなら」と、色々仕込んでみた次第です。
今回の目標
「IoTだのなんだので色々遊べそうな、お家を作ってみる」、つまり、「スマートホームとかのパッケージをガツンと入れてメーカー任せ」ではなく、「自力で弄れる余地を残しまくれるように色々仕込む」方向でいこうかと。
自動制御自体まで作りこまず、とりあえずは「対応」な感じで。
えぇ、時間がねえ・・・。
各種制御系
まあ、アレクサ対応だのHEMSだのありますが。
基本的に、「ローカルなプロトコルを何らかの形でクラウドサーバとの間で通信確立し、クラウドサーバで他の制御サーバからの通信を待ったりする」な感じです。
アレクサだとJSONベースの通信のやりとりをどうにかすればいいかんじですし。
https://developer.amazon.com/ja-JP/docs/alexa/device-apis/message-guide.html
HEMSの場合、「echonet-lite」プロトコルをどうにかすればなんとかなる感じです。
https://ja.wikipedia.org/wiki/ECHONET_Lite
*但しデバイスIDとかをメーカー側が公開しているとは限らない
それとは別に、そもそも、、、。
・赤外線リモコンをどうにかする
・ローカル自動制御に任せる(人感センサーなど)
あたりで、なかなかステキな感じになるかと。
計測系
自動制御するにあたりまあ、必要なのが、「計測」すること。
人感センサーなどによる「人」の検知や。
温度、湿度などの「環境」系。
電流検知などによる「機器の動作状況」系。
更に計測するデバイスの為の「電源」や「通信手段」など。
考慮する必要があるような感じで。
家屋設計の概要
まあ今回は注文住宅なので、大まかに以下な流れで家屋のパラメータは決められていきます。
家の躯体設計→外装・内装・架装物設定→外構など
まあどーしても越えられないのが、法律の壁、まあ建蔽率とかですけれども。
他は大体どうにかなりそうな雰囲気です。
躯体設計と突っ込みどころ
躯体設計において、「IoT対応」っぽくなるポイントはどこかいな、と。
今回は、以下な感じに工夫してみました。
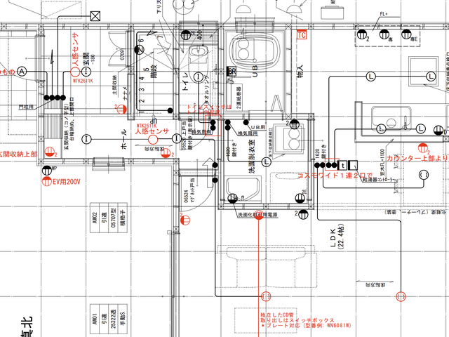
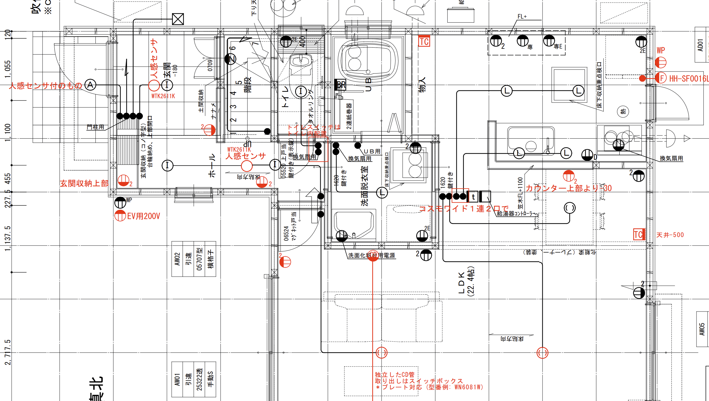
設計士様とのやりとり
基本的には「お打ち合わせベース」でやりとりが標準ぽいのですが。
幸い?、PDFで図面を貰えていたので。
PDFに赤書きで各種指示を書き共有することで、お互いの齟齬が生まれづらいように工夫してみました。
こんな感じです。
照明系
基本的にパナソニックの人感センサーと、ダウンライト、シーリングライトで構成することにしました。
人感センサーによる自動制御、ダウンライトはアダプタ経由Echonet制御、シーリングライトは赤外線制御を狙っています。
人感センサー
人感センサーはバリエーション豊かな感じで、、、
- 屋外/玄関用のダウンライト、ペンダントライト内蔵型
- 天井取り付け型
- スイッチ部取り付け型、スタンダード
- スイッチ部取り付け型、センサ増設(3路スイッチライク)
- スイッチ部取り付け型、LED/換気扇制御 (トイレ用)
を使ってみることにしました。
各人感センサーは、周囲の明るさ、及び検知範囲の設定が出来ます。
複数の人感センサーを用いる場合、明るさ検知指定が結構ナーバス(他の人感センサーで点灯した照明の明るさで検知無効にされちゃう)なので、そのへんを考慮に入れて人感センサー設置箇所を調整する必要があったり無かったり、、、ダイクストラ!?。
今回は、トイレ回りの人感センサーを「トイレ内」に取り付けたり、階段部と廊下部の人感センサー位置を対面になるように調整した上で、階段部の人感センサーの検知範囲を絞ることで、人感センサーが適切に検知するよう工夫してあります。
ダウンライト
ダウンライトは、調光制御がしたかったこと、及びトイレ用人感センサー対応で、一般的な単機能のものではなく、調光対応のものを選定しました。
パナソニックの場合、型番の最後の3文字で判別が可能です。
「LE1」の場合は調光不可、「LB1」の場合は調光可、「LU1」の場合は調色、調光可能、な感じです。
リンクモデルスイッチ
ダウンライトの調光制御は、パナソニックの「リンクモデル」を使ってみることにしました。
これは、426MHzの特定小電力無線で制御できるスイッチです。
バリエーションとして、Bluetoothモジュールを内蔵し、スマホからの制御にも対応している「リンクプラス」もあります。
が、高くて機能が不足してたので、今回はリンクモデルを使ってみることにしました。
リンクモデルスイッチの留意点は、「スイッチ自体の電源が必要」なことです。
人感センサーの接続と、リンクモデルスイッチの接続を比べてみると分かりますが。
人感センサーは負荷と電源の間に直列に挟む、「通常のスイッチの代替」として入れることができますが、リンクモデルスイッチは、別途電源配線が必要です。
なので、「後から気軽に追加」は、中々難しいので、導入は慎重に、大胆に!。
あ、リンクモデルスイッチは、パナソニックのゲートウェイやHEMSサーバを置けば、echonet-liteでおしゃべりしてくれるみたいです。
シーリングライトとスイッチ
シリーズを揃えることで、同じリモコンで複数制御出来ますし。
リモコンを持ち運べば、複数の部屋を行き来しても、常に手元で照明制御が出来ちゃいます。
なので、壁スイッチは不要なのですが、万が一の照明トラブル時や、将来的に別のライトを付けた時のために、壁スイッチは通常通りとしました。
但し、触るものではないので、壁に一体化して目立たない「アドバンス」シリーズを採用しております。
ま、頻繁に触るのなら、スイッチは後から替えちゃえばいいしね!。
コンセント
お部屋のコンセント
通常コンセントは「一部屋に2か所(エアコン除く)」が標準だそうで。
すが、一部屋3か所に増やしたり。
玄関だのリビングだの廊下だのにもコンセントをつけまくりました。
結局、たかが3LDK+αな家屋なのに、60か所以上コンセントがついている、電源天国状態になってます。
また、主なコンセントは全て、「3Pコンセント-2口」にし、アースを全てのコンセントで取れるようにしました。
ねじ式のアースは採用せず、以下のような変換アダプタで対応することにしました、機器外しやすいしね。
ただこの「3P-2P変換アダプタ」は、あまりメジャーではないらしく、秋葉原探しても在庫は見つかりませんでした、、、。
オヤイデの人に「初めて聞きました」とか言われちゃったよ・・・。
屋外コンセント
屋外コンセントは、一般的な屋外用のものと、EV充電用のものを、合計3系統付けてあります。
いずれも、防犯、及び安全対策として、パナソニックのEV系統用スイッチを系統に挟みました。
このスイッチは、20A使えること、また「両切」、つまりAC電源のL線、N線双方を同時に切ることが出来ることから、この先の系統異常(漏電とか)の影響を抑えることが出来ます。
将来的に、スイッチボットかましたり、マグネットスイッチに置き換えたりもできますし!。
難点としては、、、スイッチプレートが、、、EV表示固定なのよね、、、これじゃどっちか、わからない!。
配電盤
配電盤は、パナソニックの一般的なもの、、、ではなく、スマートコスモの「HEMSレディ」型を導入してみました。
これは、電流計測系の機材は付いていないのですが、各系統にCTが予め埋め込まれているものです。
電流計測系の機材を後からポン付けで足すことが出来ます。
電流計測は電圧と違い、系統を切断して直列に何か仕込むか、カレントトランス(CT)を線にかますかする必要があります。
後から工事は、かなりゲンナリなので、まあ仕込まれているのは、大変ステキね!。
配管とEPS
ホントはOA床が良かったのですが、流石にダメと言われ。
各部屋には、一般配線用の配管を付けてもらいました、いわゆるCD管で。
*セパレータを、無理やり入れました・・・。
で、集約は、一般的には「ユニットバス上」になるらしいのですが、今回はEPSを検討、、、したのですが場所が無く、ウォークインクローゼット上に集約することにしました。
配線は、現状は主にLAN配線を通しています。
素人施工で、計測器も無い為、10Gbpsを流すところは、既存のCAT6aケーブルを通しています。
1Gbpsでいいなってところは、パナソニックのLANコンセント「ぐっとす」のCAT6を使って配線しています。
こうなります。
なんかLANのツメの方向に、ちょっと違和感がありますが。
また、集約側はLANコンセントを使わずに、そのままLANケーブルを出しています、接続点が増えるとそれだけメリットが落ちちゃう気がして。
配管太さは16φ、LANケーブルはコネクタついてるとそのままでは通らず、コネクタのツメをマスキングテープで潰して通しましたとさ。
他、テレビ予定地には、スピーカーケーブル用に前後を繋ぐ空配管を、1階リビングの掃き出し窓のところにも、将来的に何かやらかす用に、左右空配管を入れて貰っています。
ここまでのまとめ
最初からばっちり自動制御!みたいなのもいいのですが。
まあ家屋なので、ゆっくり遊べて、進化させていくことが出来るように、「余地」を多めにとる方向で作ってみました。
どーせ今の段階で「ばっちり」な自動制御系を組んでも、家屋の寿命である数十年からしたら、かなり短い期間で陳腐化するでしょうし。
思いついた時に仕込める、方が楽しいかな、と。
ま、現状、作業場なので。
テレワークに使いつつ、慣らしていきたいと考えております。
では!。
投稿者の人気記事





-
eucaly
さんが
2023/04/08
に
編集
をしました。
(メッセージ: 初版)
-
eucaly
さんが
2023/04/08
に
編集
をしました。
-
eucaly
さんが
2023/04/08
に
編集
をしました。
-
eucaly
さんが
2023/04/08
に
編集
をしました。
Opening
ken111222
2023/04/18 Opening
ken111222
2023/04/18 Opening
ken111222
2023/04/18
ログインしてコメントを投稿するとても興味深い記事で、モノのインターネットの時代に、このような斬新なアイデアやデザインが生まれていることは、とてもうらやましく、尊敬に値します。 しかし、これらの[電子部品](<a href='https://www.9icnet.net'>9icnet</a>)の中からより高い[品質を選](<a href='https://www.9icnet.com'>9icnet</a>)択する必要がありますか? また、スイッチやワイヤーに信頼できるブランドが必要ですか?
とても興味深い記事で、モノのインターネットの時代に、このような斬新なアイデアやデザインが生まれていることは、とてもうらやましく、尊敬に値します。 しかし、これらの[電子部品](<a href='https://www.9icnet.net'>9icnet</a>)の中からより高い品質を選択する必要がありますか? また、スイッチやワイヤーに信頼できるブランドが必要ですか?
とても興味深い記事で、モノのインターネットの時代に、このような斬新なアイデアやデザインが生まれていることは、とてもうらやましく、尊敬に値します。 しかし、これらの[電子部品](<a href='https://www.9icnet.net'>9icnet</a>)の中からより高い品質を選択する必要がありますか? また、スイッチやワイヤーに信頼できるブランドが必要ですか?